Hébergement

Présentation de la Résidence Doris-Dickner

Le presbytère prend le nom de Résidence Doris-Dickner en l’honneur du généreux don «Bâtisseur» de monsieur Dickner, qui a été touché de près par la cause de l’autisme. Un de ses proches vivait avec un trouble du spectre de l’autisme à une époque où ce syndrome était encore inconnu du corps médical.

L’incompréhension de l’entourage n’est jamais facile pour les personnes autistes. Étant sensible à leurs difficultés d’intégration, monsieur Dickner a décidé de soutenir La Maison l’autnid dans sa mission d’offrir un toit et des services spécialisés aux personnes TSA de la région.



Service accessible à la clientèle admissible de l’ensemble du Bas-Saint-Laurent

Le volet «hébergement» s’adresse spécifiquement aux personnes de 18 ans et plus présentant un trouble du spectre de l’autisme (TSA); pouvant avoir une légère déficience physique ne nécessitant pas de fauteuil roulant ou d’adaptations majeures; dont le degré d’autonomie demande une intensité de services légère à importante.

  • Aménagement sécuritaire et stimulant de 8 unités d’habitation à loyer modique à Rivière-du-Loup, avec services communs (repas, salle de repos, atelier de travail, buanderie).
Aménagement

Premier étage
Premier étage

  • Centre de jour Autiste & majeur Québecor
  • Espace gardiennage LEBEL
  • Chambre de répit LEBEL
  • Cuisine
  • Salle à manger
  • Espace administratif Fondation Maurice Tanguay
  • Chambre MRC de Rivière-du-Loup

Deuxième étage
Deuxième étage - plan

  • Chambre Société VIA
  • Chambre Aliments ASTA
  • Chambre Morneau
  • Chambre ACACRDL
  • Chambre JM Bastille
  • Chambre Famille Yves Pomerleau
  • Chambre St-Hubert

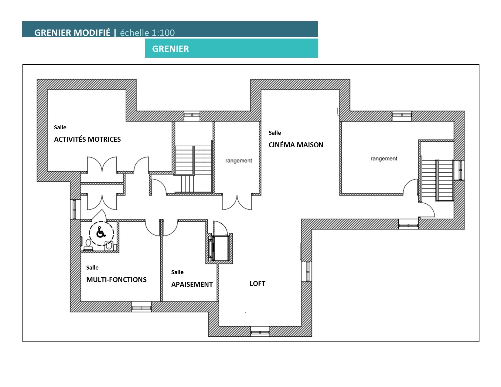
Troisième étage (grenier)
Grenier - plan

  • Loft
  • Espace sensoriel
  • Cinéma maison
  • Espace technologique ITI
  • Salle d’activités physiques


Espaces extérieurs
Dejardins extérieur - plan

  • Espace pique-nique
  • Espace balançoires
  • Espace fontaine
  • Espace jardin

Services et encadrement

Selon leur autodétermination, les personnes TSA ont accès à un espace physique qui s’adapte à leurs besoins d’évolution. Cela leur assure un meilleur développement et consolide leurs acquis tout en évitant les régressions qui surviennent souvent chez les personnes TSA lors d’un changement de milieu de vie.

Qu’il s’agisse de soins corporels, de nutrition ou de la sphère professionnelle, La Maison l’autnid a pour objectif d’offrir le soutien qui aide les résidents à accroitre leur autonomie.

Le personnel est bien formé aux spécificités des personnes autistes de manière à favoriser leurs apprentissages et à prévenir les désorganisations. Comme les personnes autistes sont très sensibles aux changements, la qualité et la stabilité du personnel d’encadrement en milieu de vie sont des aspects prioritaires à considérer.

Ce projet intégré est porté par une vision de santé globale et vise à optimiser les conditions de vie des personnes TSA. Il encourage un mode de vie actif et mise sur une alimentation de qualité qui favorise la santé des personnes tout en tenant compte de leurs goûts et de leurs besoins.

Du personnel est disponible sur place 24 h sur 24 h tous les jours de l’année. Les volets «hébergement», «gardiennage» et «centre de jour» permettent de disposer d’un minimum de deux personnes-ressources de 8 h à 20 h. Une personne-ressource est également présente toute la nuit.

Une direction et un.e cuisinier.ère sont aussi en poste.

Chaque résident dispose de sa chambre privée dotée d’une salle de bain complète. Il est libre de participer ou non aux activités du centre de jour s’il ne vaque pas à d’autres activités en dehors de la résidence. Tous les espaces communs sont à sa disposition. Il peut librement prendre ses repas avec le groupe ou à part.

Code d’éthique



Adresse de correspondance:

La Maison l’autnid
522, rue Saint-Alfred
Rivière-du-Loup (Québec) G5R 3M2
lautnid@gmail.com

Nous-joindre

La Maison l’autnid est un organisme à but non lucratif (OBNL) reconnu au titre d’organisme de bienfaisance enregistré (73919 0916 RR 0001).

Faites un don

Restez en contact

En vous inscrivant à notre infolettre, vous devenez automatiquement membre de La Maison l'autnid.